Prywatny
Sopot
Architektura
604 m²










t e m a t:
dom jednorodzinny
s t a t u s:
pozwolenie na budowę - realizacja 2015-16
k l i e n t:
prywatny inwestor
p o w i e r z c h n i a:
604 m²
p r o j e k t a n c i:
wiktor kurc, aleksandra mierzwa
k o n s t r u k c j a:
rebel concept
p r o j e k t w y k o n a w c z y:
rebel concept
I d e a:
dom jednorodzinny na morzem z halą garażową
Dom przeznaczony dla 4 osobowej rodziny
urbanistyczna idea projektowa: założeniem było, aby budynek pomimo bardzo dużego programu na niewielkiej działce nie dominował nad pozostałymi obiektami w okolicy, dlatego zdecydowaliśmy się na rozbicie budynku na dwie bryły. Jako że dzialka lezy na zwienczeniu osi drogi wysunelismy jedną część budynku jako akcent, druga została wyrownana do lini zabudowy istniejących budynków. Dzięki takiemu zabiegowi udało nam się wpisać w skale istniejącej zabudow pomimo obszernego programu. Wysuniecie domu w północnej cześć działki pozostawia rekreacyjną część ogrodu od strony południowej.
Gabaryty działki na której usytuowany jest budynek są niewielkie, w sumie jej obszar to 800 mkw. inwestorzy chcieli stworzyć przytulny zakątek dla siebie i rodziny. Dom otwiera się przeszkleniami oraz strefą dzienną na południe aby jak najbardziej wykorzystać uprzywilejowaną, południową stronę. Strefa techniczna została sofnięta do północnej części. Balkon okalajacy budynek na pierwszej kondygnacji działa jak klasyczny okap dachowy chroniący przed przegrzaniem budynku w okresie letnim. "Okap" dodatkowo miał zapewnić intymność mieszkańcom i osłonić dzienne częsci przed wysoką zabudową powstałą w bliskim sąsiedztwie.
Budynek leży w ścisłej strefie konserwatorskiej. Otwartość konserwatora zaowocowała nowoczesnym budynkiem dobrze wpisujacym się w tkankę ulicy, nawiązujący skala i formą do zabytkowej pieżei mieszczących się w okolicy budynków. Zgoda na użycie płyt cementowo-wiorowych na elewacji oraz dachu budynku a także zastosowanie dużych przeszkleń pozwoliło stworzyć bardzo nowoczesną i wyraźną bryłę. Duża dbałość o detal podkreśla czysty kształt budynku, a użycie świerku w parterze nadało morskiego klimatu i nawiązało do materiałów regionalnych.
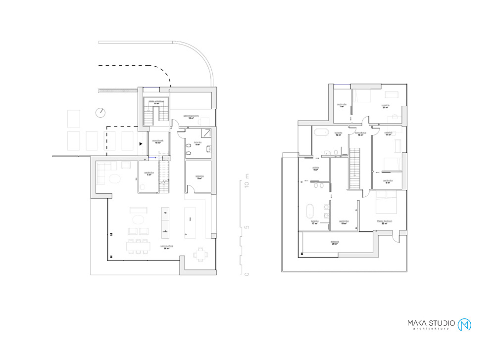
Piętro jest prywatną strefą domowników. Sypialnie z garderobami oraz łazienkami dostosowane zostały do potrzeb rosnącej rodziny. Okna pomieszczeń skierowane w stronę morza, zapewniają mieszkańcom ekskluzywny przywilej witania każdego dnia widokiem na morze.
dom jednorodzinny
s t a t u s:
pozwolenie na budowę - realizacja 2015-16
k l i e n t:
prywatny inwestor
p o w i e r z c h n i a:
604 m²
p r o j e k t a n c i:
wiktor kurc, aleksandra mierzwa
k o n s t r u k c j a:
rebel concept
p r o j e k t w y k o n a w c z y:
rebel concept
I d e a:
dom jednorodzinny na morzem z halą garażową
Dom przeznaczony dla 4 osobowej rodziny
urbanistyczna idea projektowa: założeniem było, aby budynek pomimo bardzo dużego programu na niewielkiej działce nie dominował nad pozostałymi obiektami w okolicy, dlatego zdecydowaliśmy się na rozbicie budynku na dwie bryły. Jako że dzialka lezy na zwienczeniu osi drogi wysunelismy jedną część budynku jako akcent, druga została wyrownana do lini zabudowy istniejących budynków. Dzięki takiemu zabiegowi udało nam się wpisać w skale istniejącej zabudow pomimo obszernego programu. Wysuniecie domu w północnej cześć działki pozostawia rekreacyjną część ogrodu od strony południowej.
Gabaryty działki na której usytuowany jest budynek są niewielkie, w sumie jej obszar to 800 mkw. inwestorzy chcieli stworzyć przytulny zakątek dla siebie i rodziny. Dom otwiera się przeszkleniami oraz strefą dzienną na południe aby jak najbardziej wykorzystać uprzywilejowaną, południową stronę. Strefa techniczna została sofnięta do północnej części. Balkon okalajacy budynek na pierwszej kondygnacji działa jak klasyczny okap dachowy chroniący przed przegrzaniem budynku w okresie letnim. "Okap" dodatkowo miał zapewnić intymność mieszkańcom i osłonić dzienne częsci przed wysoką zabudową powstałą w bliskim sąsiedztwie.
Budynek leży w ścisłej strefie konserwatorskiej. Otwartość konserwatora zaowocowała nowoczesnym budynkiem dobrze wpisujacym się w tkankę ulicy, nawiązujący skala i formą do zabytkowej pieżei mieszczących się w okolicy budynków. Zgoda na użycie płyt cementowo-wiorowych na elewacji oraz dachu budynku a także zastosowanie dużych przeszkleń pozwoliło stworzyć bardzo nowoczesną i wyraźną bryłę. Duża dbałość o detal podkreśla czysty kształt budynku, a użycie świerku w parterze nadało morskiego klimatu i nawiązało do materiałów regionalnych.
Piętro jest prywatną strefą domowników. Sypialnie z garderobami oraz łazienkami dostosowane zostały do potrzeb rosnącej rodziny. Okna pomieszczeń skierowane w stronę morza, zapewniają mieszkańcom ekskluzywny przywilej witania każdego dnia widokiem na morze.