KOS
Kosakowo
Architektura
190 m2






temat:
dom jednorodzinnystatus:
realizacja 2024/25klient:
prywatny
miejsce:
kosakowopowierzchnia:
190 m2
projektanci:
aleksandra kurcanastasiya audziayevich
z a k r e s:
projekt konepcyjnyprojekt budowlany
c g i:
maka.studioidea:
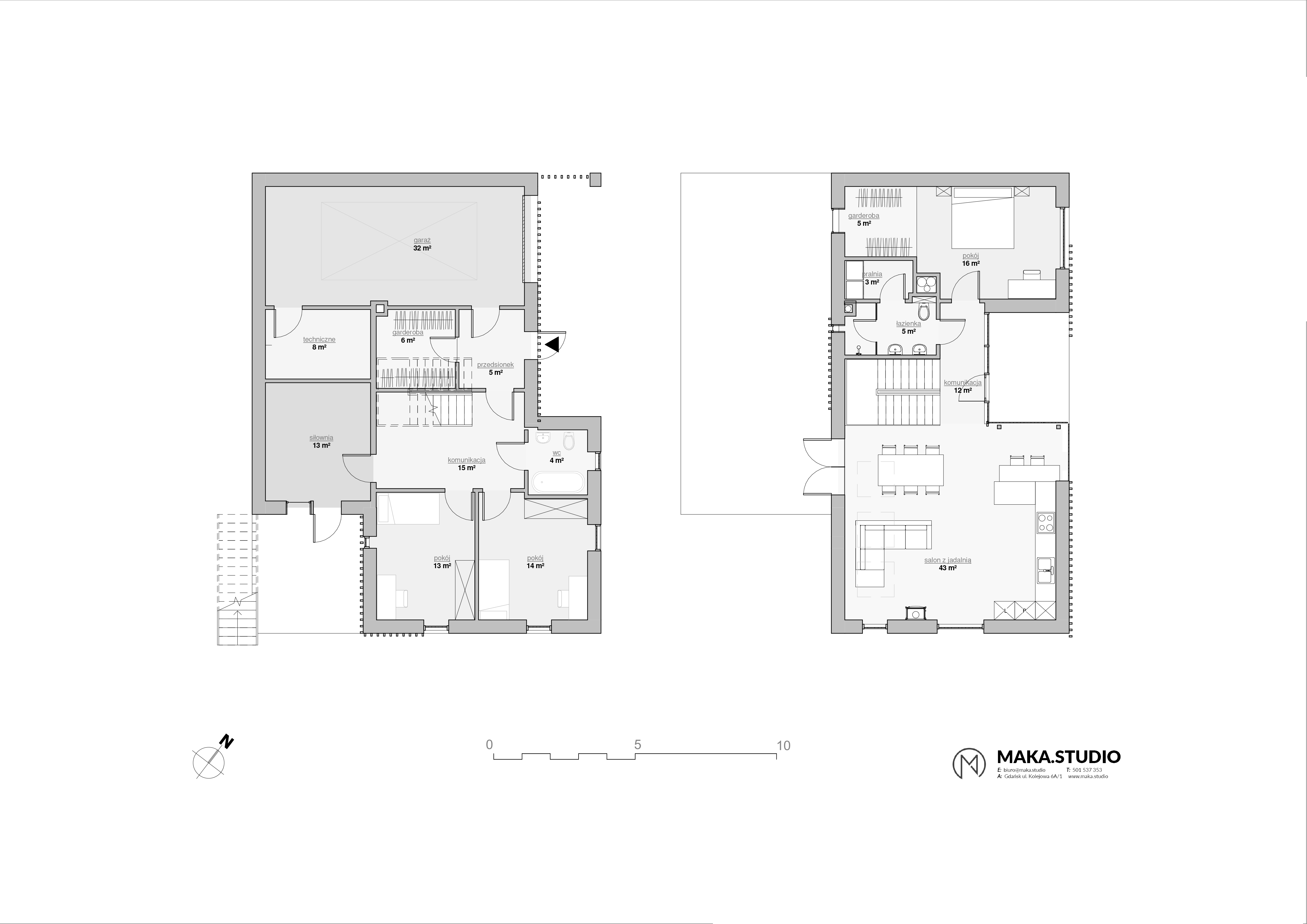
Projekt dotyczy nowoczesnego, jednorodzinnego domu, który łączy funkcjonalność z estetyką. Budynek składa się z dwóch kondygnacji – parteru i piętra, które doskonale wpisują się w naturalne ukształtowanie terenu. Działka charakteryzuje się wyraźnym spadkiem o kilka metrów w zachodniej części, co stanowiło istotne wyzwanie projektowe.Parter obejmuje garaż, siłownię oraz dodatkowe pokoje mieszkalne. Piętro, przesunięte do przodu, tworzy przestronny taras z jednej strony budynku, który jest dostępny zarówno za pomocą zewnętrznych schodów, jak i wyjścia z salonu. Z drugiej strony znajduje się loggia, otoczona szklaną balustradą, zapewniająca prywatność i piękne widoki. Loggia może zostać zasłonięta za pomocą przesuwnych okiennic wypełnionych pionowymi drewnianymi lamelami, co pozwala na regulowanie nasłonecznienia.
Elewacja budynku jest dynamiczna, z diagonalnym układem drewna, co nadaje mu nowoczesny charakter. Duże okna i szklane elementy wykończenia wprowadzają do wnętrza naturalne światło. Projekt uwzględnia integrację z otoczeniem, zapewniając prywatność i harmonijnie wpisując się w naturalny krajobraz.