Prywatny
Bory Tucholskie
Architektura
420 m2














publikacje:
ArchDaily
White MAD
Kalendarz SCHÜCO
SCHÜCO
Brick Award
Nominacja ArchDaily BOTY
Architektura & Biznes
Dom z cegły
Restless living
Arch2O
Archello
Archiconnect
ŁadnyDom
Dobrzemieszkaj
temat:
dom jednorodzinnystatus:
realizacja 2020-2021
klient:
prywatny
miejsce:
pomorskie
powierzchnia:
420 m2
projektanci:
wiktor kurcaleksandra kurc
zakres prac:
projekt konepcyjny
projekt budowlany
projekt wykonawczy
zdjęcia:
perspektywa.net.pl -
Jakub Nanowski
idea:
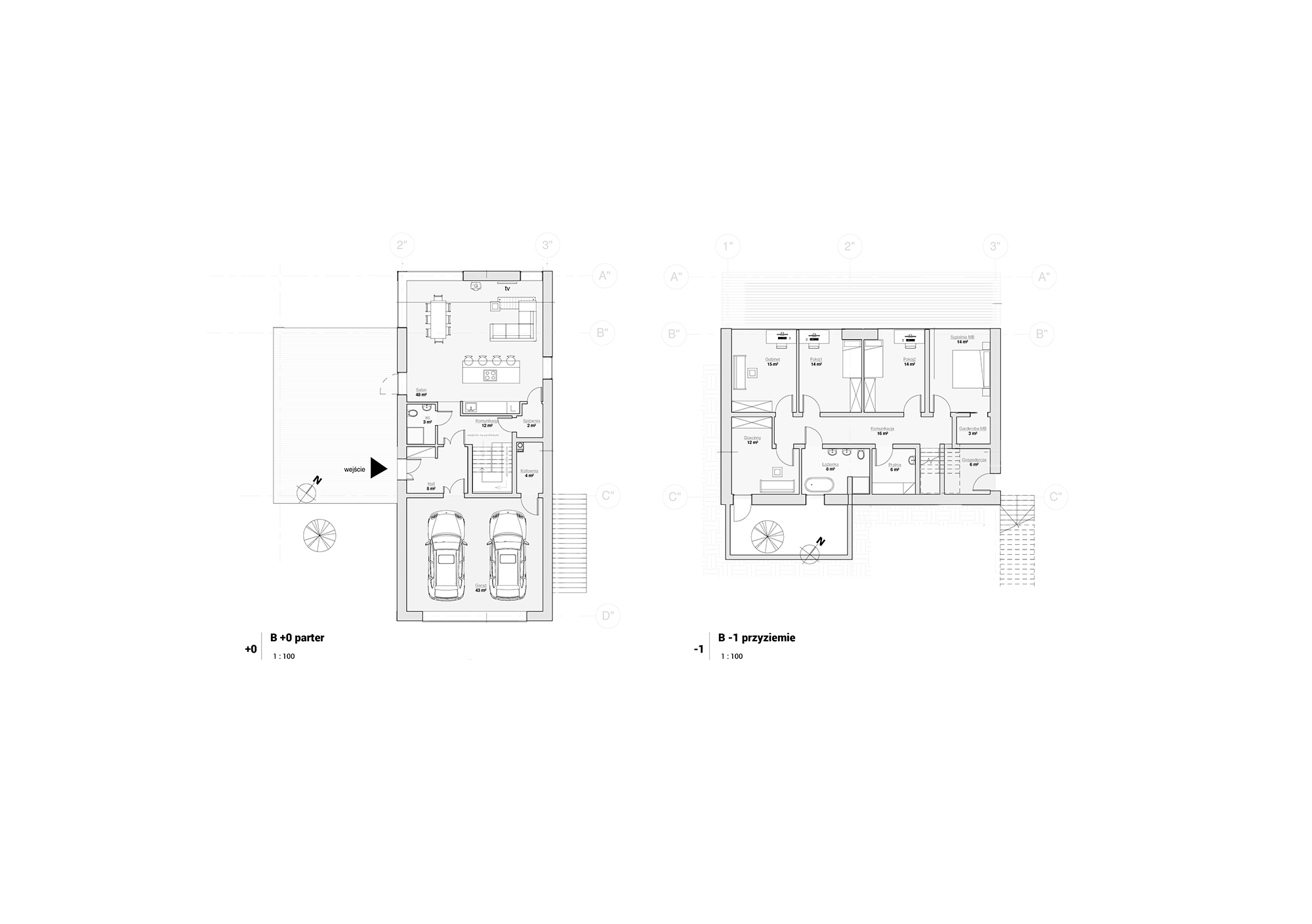
Projekt zespołu dwóch budynków jednorodzinnych usytuowanych nad linią brzegową jeziora. Działka z południowym wjazdem i spadkiem była wyzwaniem projektowym.
Koncepcja zakładała, odwrócenie strefy nocnej i dziennej. Strefa nocna w kondygnacji -1. Strefa dzienna na poziomie 0. Budynek wykorzystuje naturalne ukształtowanie terenu - niejako spływa z otoczeniem.
Dzięki takiemu zabiegowi część dzienna jest wyżej i uzyskujemy większą panoramę na jezioro.
Poprzez zastosowanie naturalnych, szlachetnych materiałów jak drewno, kamień czy cegła mają wtapiać się w otoczenie i być jego dopełnieniem; na wjeździe wyeksponowane jedynie fronty budynków, z kondygnacją podziemną otwierającą się w stronę jeziora, dzięki naturalnej barierze ukształtowania terenu wydzielona została strefa prywatna ogrodów.